Rekonstrukce správní budovy Městského úřadu Prostějov
Projekt pro stavební povolení a realizační projekt : spolupráce na stavební části projektu, koordinace profesí, autorský dozor. Pro Stavoprojekt Olomouc.
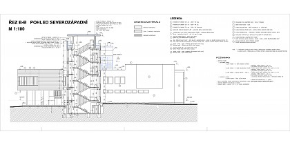
Dokumentace řešila komplexní rekonstrukci stávajícího objektu MÚ, původem ze 70. let 20.století. Objekt sestává ze dvou na sebe navazujících hmot – čtyřpodlažního administrativního dvojtraktu a dvojpodlažní dvorní části s multifunkčním sálem a jeho zázemím. Nad hlavním vstupem vystupuje výrazná hmota výstavních sálů. V rámci nově navržené odvětrané fasády objektu byla vzhledově upravena stávající, neúměrně dlouhá uliční fasáda, včetně vstupní části, tak aby bylo více zdůrazněno její vertikální členění. Ve dvorní části se nově objevují lehké ocelové konstrukce dvou požárních únikových schodišť a venkovního výtahu. Stávající plochá střecha nad celým objektem byla rekonstruována na větranou dvouplášťovou. V objektu byla navržena téměř kompletní výměna výplní otvorů, podlahových krytin, obkladů, a dalšího dožilého vnitřního zařízení.
Realizace: 2003




